12 Edwards Rd, Portland, CT 06480
Toggle Navigation
Images
Videos
Floor Plans
Map
12 Edwards Rd
Portland, CT 06480
Scroll to Content
Images
Slideshow
Photo Grid
Hide
Previous
Next
Show more
Videos
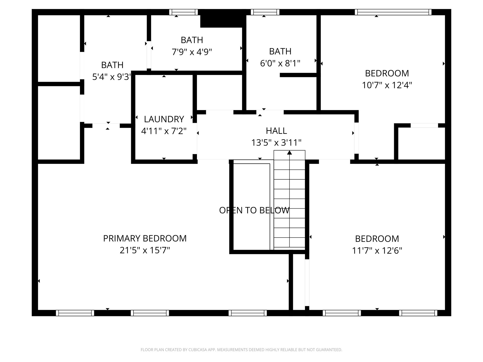
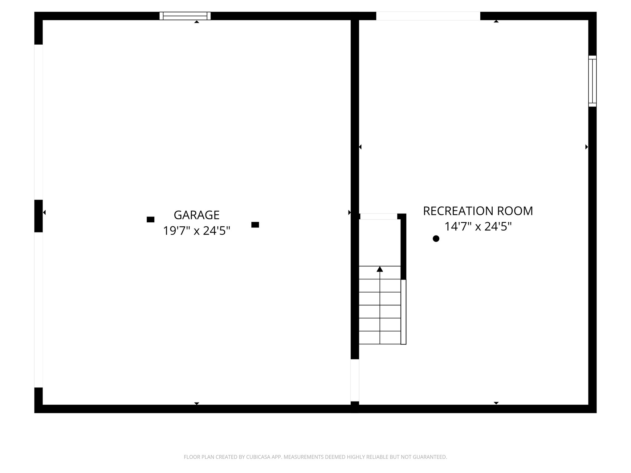
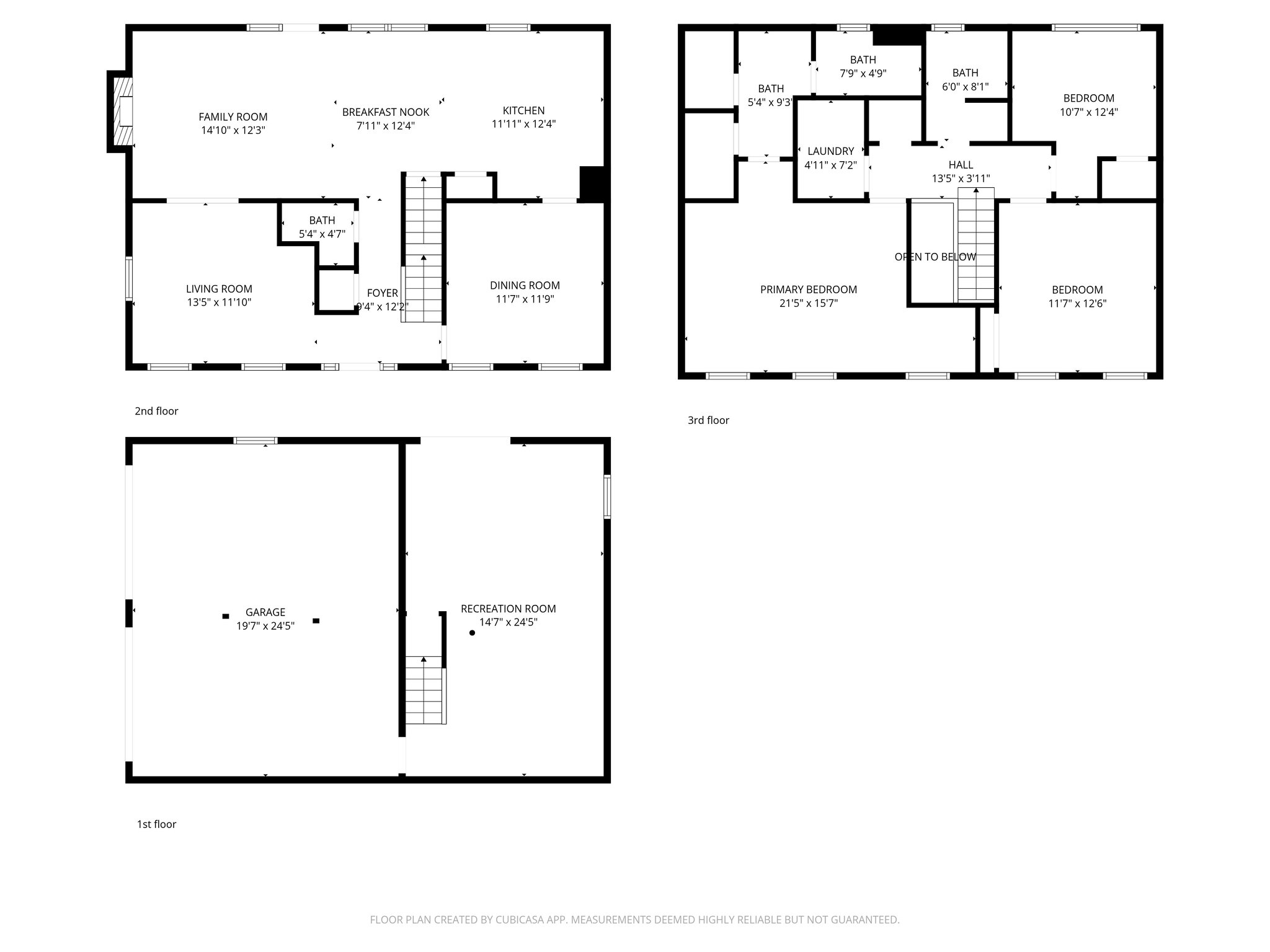
Floor Plans
Slideshow
Photo Grid
Hide
Previous
Next