269 W Mountain Rd, Simsbury, CT 06092
Toggle Navigation
Images
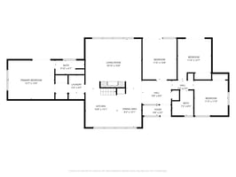
Floor Plans
Map
269 W Mountain Rd
Simsbury, CT 06092
Scroll to Content
Images
Slideshow
Photo Grid
Hide
Previous
Next
Show more
Floor Plans
Slideshow
Photo Grid
Hide
Previous
Next